El projecte Pisos disponibles Qualitats Calendari Preguntes Uneix-te →
3 vivendes disponibles
Plaça María Beneyto, 10 · València

Ací pot estar
la teua
futura casa.

Un edifici de 12 vivendes de nova construcció al cor de València. Cooperativa d'habitatge real: sense promotora, sense intermediaris.

Descobreix el projecte
Esquema de l'edifici · toca una vivenda
4C · LLIURE 2B · LLIURE 1C · LLIURE P4 P3 P2 P1 PB C B A
12Vivendes
3Disponibles
AEnergètica
2028Entrega
Solar adquirit
Comissió patrimoni superada
Pla bàsic entregat
Segregació del sòl iniciada
Permís d'obres sol·licitat
9 de 12 vivendes adjudicades
Solar adquirit
Comissió patrimoni superada
Pla bàsic entregat
Segregació del sòl iniciada
Permís d'obres sol·licitat
9 de 12 vivendes adjudicades
Alzat · Projecte d'arquitectura

Arquitecte: Pablo Ribera Pons · [PARQ]estudio

Alzat de la façana de l'Edifici Maria Beneyto, Coop. V. a la Plaça María Beneyto 10, València
Façana principal · Plaça María Beneyto nº10 · València
El projecte

Veïns que construïm el nostre propi edifici

Edifici Maria Beneyto, Coop. V. va nàixer com a promotora privada. Però els propis veïns hem agafat el control i ens estem convertint en cooperativa d'habitatge per continuar endavant junts.

Construïrem 12 vivendes al número 10 de la plaça de María Beneyto, molt a prop del creuament de Quart amb Guillem de Castro. El permís d'obres és imminent —s'espera en el primer semestre del 2026— i ja avancem amb l'estudi geotècnic i el projecte d'execució.

Iniciem les obres el 2026 i entregarems les vivendes a principis de 2028. Tenim tres vivendes disponibles, cadascuna especial. Vols viure amb nosaltres?

🤝

Comunitat real

Triem als nostres veïns. Construïm vincles molt abans d'entrar a viure.

💡

Transparència total

Sense intermediaris ni marge comercial: el preu és el cost real de construir.

🌱

Qualificació energètica A

Aerotèrmia, plaques solars i façana SATE. Estalvi real en la factura energètica.

📍

Ubicació privilegiada

Plaça peatonal tranquil·la al centre de la ciutat, a prop de tot.

12Vivendes
3Disponibles
5Plantes
AEnergètica
2028Entrega
0Intermediaris
Arquitecte del projecte
Pablo Ribera Pons
[PARQ]estudio · Col·legiat CTAV 6.246
Projecte bàsic revisat i aprovat per la Comissió de Patrimoni de l'Ajuntament de València.
📍 Ubicació

Plaça María Beneyto, 10

València — Prop del creuament de Quart amb Guillem de Castro. Plaça peatonal, tranquil·la, amb tots els serveis a mà.

🚇 Àngel Guimerà
🚌 Múltiples línies de bus
🌳 Plaça peatonal
🛒 Serveis a 5 min
Plànol de situació Plaça María Beneyto 10 Plànol de situació oficial · clic per ampliar
Veure en Google Maps
A

Qualificació Energètica A

Aerotèrmia · Plaques fotovoltaiques · Façana SATE · Fusteria d'alumini amb doble acristalament

Col·legis públics a menys de 5 min a peu
🏫 CEIP Cervantes 🏫 CEIP Santa Teresa
Gestió professional
TGT · Project Management
Gestió integral del projecte i futura administració de la cooperativa. L'equip que acompanya el projecte des de l'inici.
Versis · Assessoria jurídica i financera
Especialistes en cooperatives d'habitatge. Garanteixen el marc legal i financer del projecte.
Vivendes disponibles

Queden 3 pisos
per adjudicar

Cadascuna té característiques que la fan especial. Consulta els detalls de cada vivenda i sol·licita informació directa.

Disponible
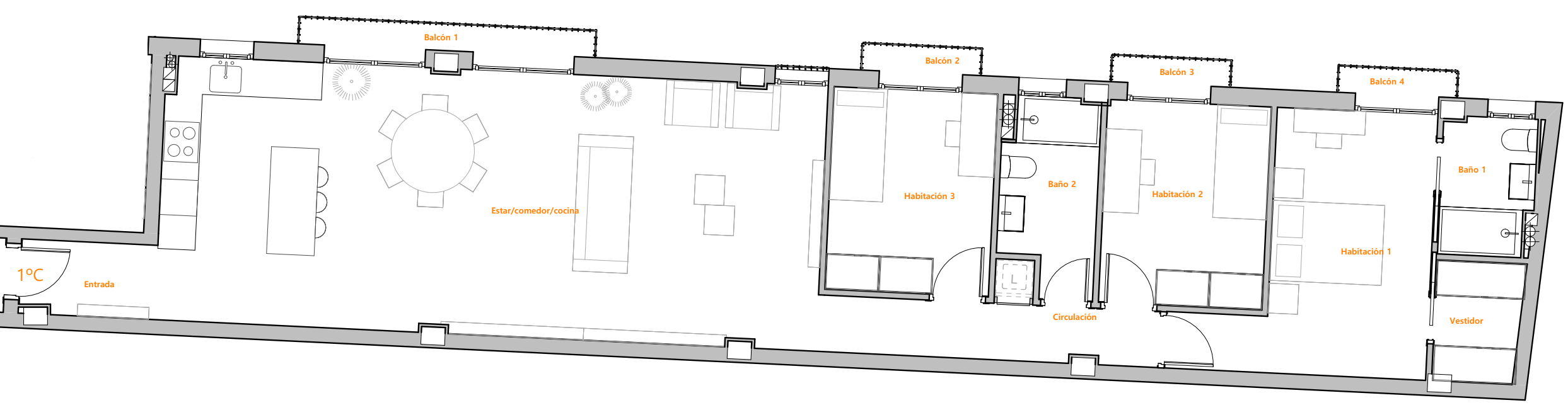
1C
Planta 1ª
Vivenda 1C
Planta 1ª · 3 habitacions · 2 banys
126 m² construïts 101 m² útils 3 hab.
  • Estar-menjador-cuina de 49 m² obert a la plaça
  • Habitació principal amb vestidor independent
  • 2 banys complets
  • 4 balcons a la façana
  • Traster inclòs en planta baixa
498.000 € preu orientatiu *
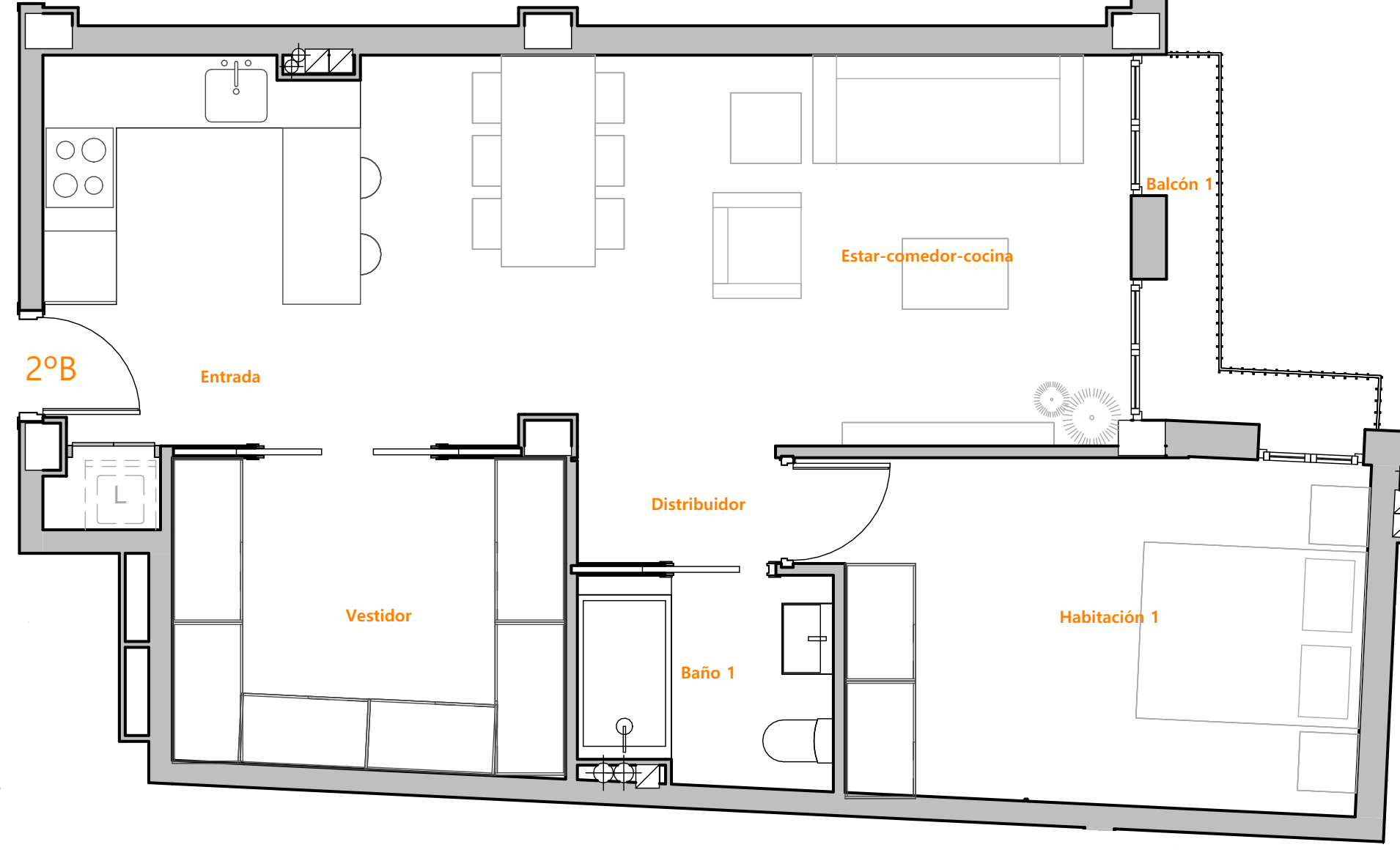
Disponible
2B
Planta 2ª
Vivenda 2B
Planta 2ª · 1 habitació + vestidor
68 m² construïts 59 m² útils 1 hab.
  • Estar-menjador-cuina de 27 m²
  • Habitació principal amb gran vestidor (9 m²)
  • Bany complet
  • Balcó orientat a la plaça
  • Traster inclòs en planta baixa
328.000 € preu orientatiu *
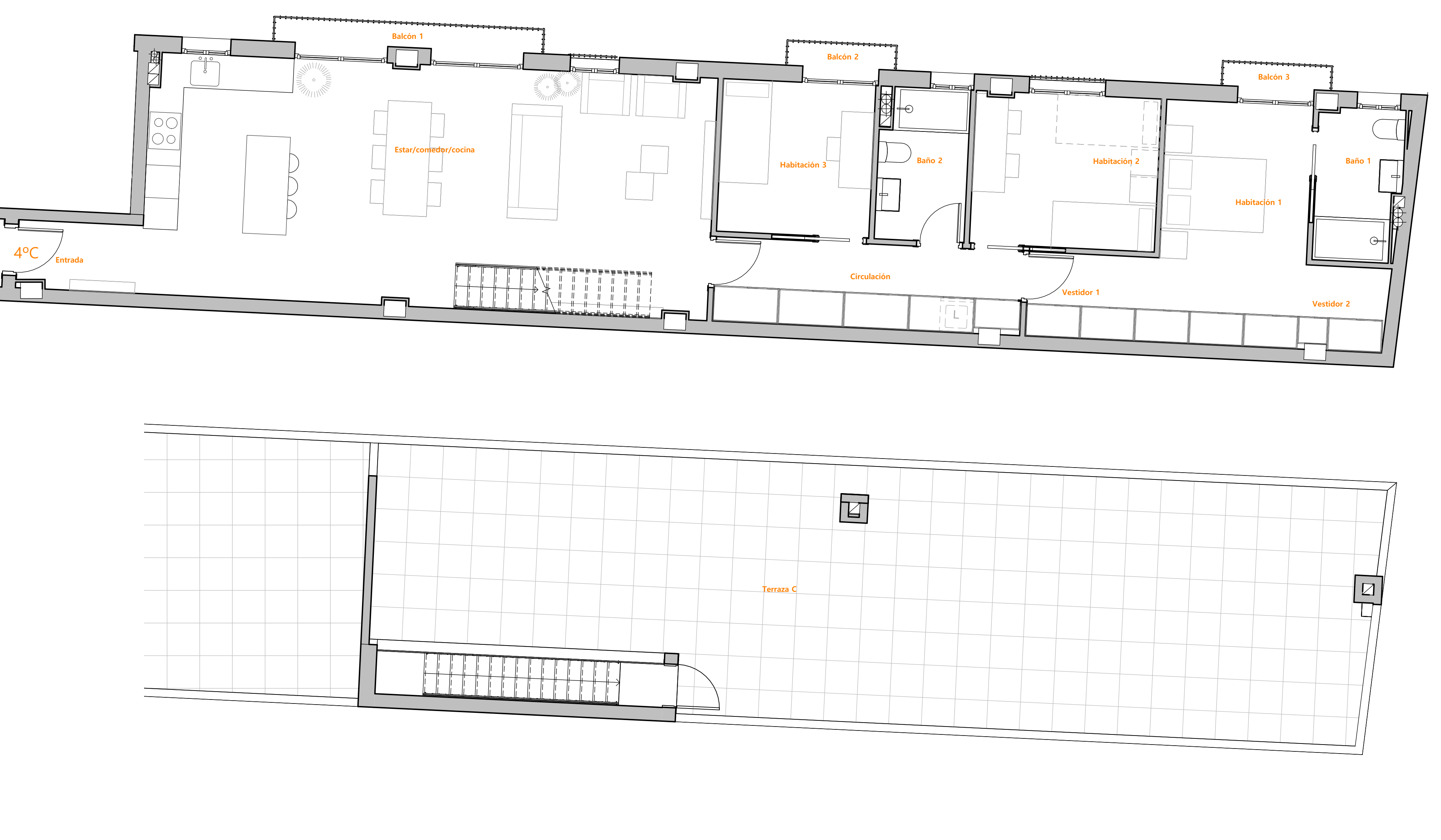
Más grande · Dúplex · Terraza
Disponible
4C
Àtic · Planta 4ª
Vivenda 4C
Àtic dúplex · 3 hab. · 2 banys · 2 vestidors
125 m² construïts 105 m² útils 3 hab.
  • Estar-menjador-cuina de 46 m² amb vistes obertes
  • 3 habitacions, 2 vestidors, 2 banys complets
  • Terrassa privada de 79 m² en coberta
  • Àtic dúplex amb escala interior pròpia
  • Traster inclòs en planta baixa
598.000 € preu orientatiu *

Les superfícies exactes, preus i condicions d'incorporació es comparteixen directament amb cada persona interessada.

* Els preus indicats no inclouen IVA. En model cooperatiu, el cost final reflecteix el cost real de construcció — sense marge promotor ni intermediaris. Expliquem la metodologia de preus en detall en la reunió informativa.
Model cooperatiu

Sense marge promotor. Sense intermediaris.

María Beneyto 10 es desenvolupa en règim de cooperativa: sense marge promotor ni intermediaris, el cost final és el cost real de construcció. Això es tradueix habitualment en un estalvi del 15–20% respecte al preu d'obra nova equivalent al mercat. Un projecte ja avançat — solar adquirit, llicències en tràmit — amb un nombre molt limitat de vivendes disponibles.

Per què triar-nos

Tot el que fa especial aquest edifici

Obra nova al centre, les millors prestacions energètiques, i una comunitat de veïns que ja es coneix. Tres coses molt difícils de trobar juntes al mercat.

🏗️

Obra nova

Edifici construït des de zero amb els millors estàndards actuals de qualitat, eficiència i sostenibilitat.

👥

Sols 12 veïns

Una comunitat petita i cohesionada. Coneixeràs tots els veïns des del primer dia. Res a veure amb grans blocs anònims.

📍

Al cor de València

Plaça peatonal a pocs minuts de tots els serveis: metro, bus, comerços, col·legis, parcs i equipaments.

100% elèctric

Aerotèrmia i plaques solars. Estalvi real i significatiu en les factures energètiques des del primer dia.

🚲

Traster + Aparcabicis

Tots els pisos inclouen traster en planta baixa i zona d'aparcabicis privada per a tots els veïns.

🏫

Col·legis a 5 min

CEIP Cervantes i CEIP Santa Teresa, ambdós públics i de qualitat, a menys de 5 minuts caminant.

Característiques

El projecte,
en detall

01
La ubicació

Barri Botànic, a Extramurs. L'edifici s'obre a una plaça interior peatonal, lliure de trànsit: tot el silenci d'un interior de mançana estant al cor de la ciutat. A dos minuts de les Torres de Quart, cinc del metro (Túria i Àngel Guimerà) i a prop del Jardí del Túria, el Jardí Botànic i el Mercat Central.

02
L'edifici

Edifici de nova construcció en 4 plantes, dissenyat per assolir qualificació energètica A. Façana amb aïllament SATE, aerotèrmia centralitzada per a l'ACS i plaques fotovoltaiques en coberta. Climatització per conductes instal·lada a totes les estances. Ascensor accessible. Vestíbul acabat en pedra natural i fusta. Trasterer inclòs per a cada vivenda en planta baixa.

03
Les vivendes

Climatització fred/calor per conductes a saló, dormitoris i cuina. Fusteria d'alumini amb doble acristalament i persianes d'alumini. Paviment ceràmic o porcelànic. Sanitaris de porcellana vitrificada i grifera monomandament de baix cabal. Inodors de doble descàrrega. Fibra òptica amb presa a saló, cuina i dormitoris. Ventilació individual per vivenda: sense olors ni sorolls compartits amb el veí.

Calendari del projecte

El camí fins a la teua nova llar

Permís d'obres imminent. L'objectiu és clar: iniciar la construcció el 2026 i entregar les claus a principis de 2028.

Fet · 2024–2025
Fonaments del projecte
Solar adquirit, pla bàsic entregat, comissió patrimoni superada. 9/12 vivendes adjudicades.
👋
Ara · 2026
Últimes 3 places
Uneix-te ara a la cooperativa. Permís d'obres previst per a l'abril de 2026.
🏗️
2026
Inici d'obres
Comença la construcció. Estudi geotècnic i projecte d'execució finalitzats.
🔨
2027
Construcció
Visites periòdiques per als socis. Seguiment de l'obra en temps real.
🏠
Principis 2028
Entrega de claus
Entrem a viure junts a la nostra nova llar al cor de la ciutat.
Procés d'incorporació

Clar, transparent
i sense sorpreses

01
Sol·licitud d'informació

Contactes amb nosaltres i t'expliquem el projecte, la disponibilitat i resolem els teus dubtes.

02
Avaluació inicial

Revisem junts l'encaix i la disponibilitat per formar part de la cooperativa.

03
Incorporació a la cooperativa

En el moment de constitució, els socis realitzen una aportació inicial aproximada del 25–30% del cost de la vivenda.

04
Validació financera

Com a part del procés, es realitza una validació financera prèvia per a l'obtenció del crèdit promotor.

05
Inici del projecte

Una vegada completat el grup, continuem amb el desenvolupament i execució del projecte.

Estem en fase prèvia a la constitució de la cooperativa. Aquest és el moment per conèixer el projecte i valorar la incorporació.

Preguntes freqüents

Tens dubtes?
Tenim
respostes.

Si no trobes la resposta que busques, utilitza el formulari de contacte.

Què és exactament una cooperativa d'habitatge?+
Una cooperativa d'habitatge és un model en el qual els propis futurs residents s'uneixen per construir el seu edifici sense promotora comercial. Cada soci participa en la presa de decisions i el cost final és el de construcció real, sense marge de benefici per a tercers. En el nostre cas, els socis aporten el capital necessari i gestionen el procés col·lectivament.
Quin és el cost aproximat de cada vivenda?+
De forma orientativa, els preus estan en línia amb el mercat d'obra nova al barri, però sense el marge de la promotora. Sol·licita informació i et contactarem amb tots els detalls econòmics.
Com funciona el procés d'incorporació com a soci?+
Si t'interessa el projecte, ens reunim per explicar-te tots els detalls del projecte, condicions econòmiques i funcionament de la cooperativa. Si decideixes unir-te, formalitzes l'entrada com a soci i passes a formar part de la comunitat de veïns des del primer dia.
Puc finançar la vivenda amb hipoteca?+
Sí. Les cooperatives d'habitatge poden accedir a finançament hipotecari de manera similar a la compra convencional. Et facilitem tota la documentació necessària per presentar al banc. T'informem de les opcions actuals en el primer contacte.
L'edifici té places d'aparcament?+
No, l'edifici no disposa de places d'aparcament privades per a vehicles. Sí que inclou aparcabicis cobert amb dispositius de fixació individuals per a tots els veïns. La ubicació permet desplaçar-se fàcilment a peu, en bicicleta o en transport públic (metro i bus a molt poca distància).
Qui gestiona la cooperativa?+
El projecte compta amb acompanyament professional especialitzat: TGT s'ocupa de la gestió integral del projecte i assumirà l'administració de la cooperativa un cop constituïda; Versis aporta l'assessoria jurídica i financera especialitzada en cooperatives d'habitatge. Els socis prenen decisions, sempre amb suport expert.
Com es comparteix la informació del projecte?+
Preferim compartir la informació de forma personalitzada. Omple el formulari i et contactarem directament per explicar-te el projecte, la disponibilitat i els pròxims passos.
Únete

Sol·licita
informació
directa

Estem en una fase avançada del projecte i preferim compartir la informació de forma personalitzada, resolent dubtes i explicant tots els detalls directament amb tu.

  • Detalls de les vivendes disponibles i superfícies
  • Preus i condicions d'incorporació a la cooperativa
  • Com funciona el finançament i les aportacions
  • El model cooperatiu i els avantatges per als socis
  • Calendari i pròxims passos del projecte
  • Resposta directa a tots els teus dubtes

Sense compromís · Atenció personalitzada

🔒

Atenció exclusiva a persones físiques. Intermediaris, promotores i agents immobiliaris, us preguem que us abstingueu de contactar.

Qüestionari d'interès

Et contactarem personalment per explicar-te el projecte, la disponibilitat actual i els pròxims passos.

Sol·licitud rebuda!

Gràcies per l'interès en Mariabeneyto10.
Et contactarem personalment en breu per explicar-te el projecte, la disponibilitat i els pròxims passos.

Plànol ampliat
Sol·licitar informació
Plànol de situació